Foto levereras av Google Street View och kan vara oprecist:

Butikslokal att hyra, Kungsholmen, Se gatunamn[xxxxxxxxxx]

Se gatunamn[xxxxxxxxxx], Stockholm Kungsholmen
  • Butikslokal att hyra
  • 158 m2
  • 30 285 kr. per månad
Butikslokal att hyra, Kungsholmen, <span class="blurred street" onclick="ProcessAdRequest(496109)"><span class="hint">Se gatunamn</span>[xxxxxxxxxx]</span>
Se gatunamn[xxxxxxxxxx], Stockholm Kungsholmen
  • Butikslokal att hyra
  • 158 m2
  • 30 285 kr. per månad

Butikslokal att hyra, Kungsholmen, Se gatunamn[xxxxxxxxxx]

Fakta

Rapportera fel
  • 496109
  • Butikslokal
  • 158 m2
  • 363 420 kr.
  • 30 285 kr.
  • 2 300,13 kr.

Butikslokal att hyra på Kungsholmen

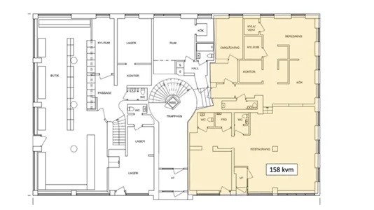
Välkommen till denna genomgående butikslokal med generöst ljusinsläpp från flera stora, välexponerade skyltfönster. Lokalens flexibla planlösning erbjuder många möjligheter för din verksamhet.
Genomgående planlösning med mycket dagsljus.
Tidigare inredd som restaurang (vissa installationer kan finnas kvar)
Möjlighet att hyra parkeringsplatser i anslutning till lokalen
Perfekt för:
Showroom, Kontor med representativ front, Detaljhandel eller kanske en utställningslokal.
Läge och kommunikationer.
Strategiskt placerad på gränsen mellan Kungsholmen och Marieberg med god exponering och kundflöde. Utmärkta kommunikationer med närhet till både tunnelbana och busshållplatser.
Se även film på lokalen: [xxxxx]
Viktigt, lokalen lämpar sig inte för restaurang-, café- eller livsmedelsverksamhet.
Wennerbergsgatan 1
Yta: ca 158 kvm
Hyra: ca 30 280:- /mån ex moms (Värme & vatten ingår)
Hyran gäller som lokalen ser ut idag.
Fastighetsskatt: ca 3 000:-/mån ex moms
Tillträde omgående enligt överenskommelse.
Hyresdeposition kommer begäras.
Titta gärna på området innan vi bokar visning.
Mailkontakt med Mäklaren för bokning av visning.
[xxxxx] Group AB • Michel Rydberg • michel@[xxxxx].se

Information och data

Denna lokal att hyra som kan användas till Butikslokal ligger på Kungsholmen, som ligger i Stockholm. Lokalen är totalt 158 m2. Du kan hyra denna lokal för 363 420 kr. per år.

Vanliga frågor

Statistik över utvecklingen av lediga butikslokaler att hyra på Kungsholmen under den senaste månaden

Nedan ser du utvecklingen av lediga butikslokaler att hyra i Kungsholmen under den senaste månaden. I den första kolumnen ser du datumet. I den andra kolumnen ser du det samlade antalet butikslokaler att hyra i Kungsholmen på datumet. I den tredje kolumnen ser du antal nya butikslokaler i Kungsholmen som lagts ut för uthyrning på datumet. I den fjärde kolumnen ser du antal butikslokaler i Kungsholmen som hyrts ut på datumet. Se även samlad statistik över alla lediga butikslokaler i Kungsholmen över tid, samlad statistik över nya butikslokaler i Kungsholmen över tid, samlad statistik över uthyrda butikslokaler i Kungsholmen över tid.

Datum Alla butikslokaler att hyra Nya butikslokaler att hyra Uthyrda butikslokaler
26. oktober 2025 18 0 0
25. oktober 2025 18 0 0
24. oktober 2025 18 0 0
23. oktober 2025 18 0 0
22. oktober 2025 18 0 0
21. oktober 2025 18 0 1
20. oktober 2025 19 0 1
19. oktober 2025 20 0 0
18. oktober 2025 20 0 0
17. oktober 2025 20 0 0
16. oktober 2025 20 0 0
15. oktober 2025 20 2 2
14. oktober 2025 20 1 0
13. oktober 2025 19 0 0
12. oktober 2025 19 0 0
11. oktober 2025 19 0 0
10. oktober 2025 19 1 0
9. oktober 2025 18 2 4
8. oktober 2025 20 1 0
7. oktober 2025 19 1 0
6. oktober 2025 18 0 0
5. oktober 2025 18 0 0
4. oktober 2025 18 0 0
3. oktober 2025 18 0 0
2. oktober 2025 18 0 0
1. oktober 2025 18 0 0
30. september 2025 18 0 0
29. september 2025 18 0 0
28. september 2025 18 0 0
27. september 2025 18 0 0
26. september 2025 18 0 0

Statistik över lediga butikslokaler att hyra på Kungsholmen

I nedanstående tabell hittar du data om utbudet av butikslokaler att hyra i Kungsholmen. Se också samlad statistik över alla lediga butikslokaler i Kungsholmen över tid, samlad statistik över nya butikslokaler i Kungsholmen över tid, samlad statistik över uthyrda butikslokaler i Kungsholmen över tid.

Butikslokaler
Antal lediga lokaler 32
Antal nya lokaler sedan igår 0
Antal uthyrda lokaler sedan igår 0
Lediga m2 totalt 5 154
Genomsnittligt pris per m2 per år utan drift 3 799
Högsta m2-pris 11 200
Lägsta m2-pris 1 887,02