Foto levereras av Google Street View och kan vara oprecist:

Lager att hyra, Borås, Sandared, Se gatunamn[xxxxxxxxxx]

Se gatunamn[xxxxxxxxxx], Borås
  • Lager att hyra
  • 298 m2
Lager att hyra, Borås, Sandared, <span class="blurred street" onclick="ProcessAdRequest(430335)"><span class="hint">Se gatunamn</span>[xxxxxxxxxx]</span>
Se gatunamn[xxxxxxxxxx], Borås
  • Lager att hyra
  • 298 m2
FÅ MER INFO OM LOKALEN

⚡ Se all information om lokalen och få direkt tillgång till hyresvärdens kontaktuppgifter.

Lager att hyra, Borås, Sandared, Se gatunamn[xxxxxxxxxx]

Fakta

Rapportera fel
  • 430335
  • Lager
  • 298 m2
  • Inte angivet
FÅ MER INFO OM LOKALEN

⚡ Se all information om lokalen och få direkt tillgång till hyresvärdens kontaktuppgifter.

Lager att hyra i Borås, Sandared

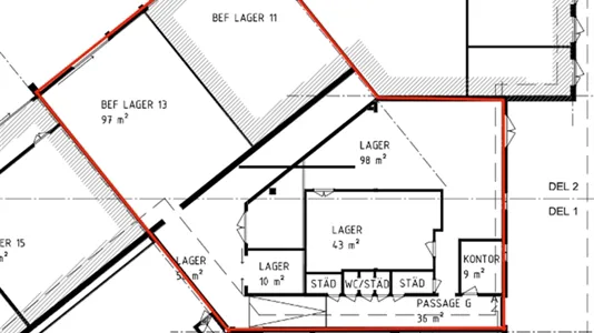
Lagerlokal med två egna portar som möjliggör in och utlastning på ett enkelt sätt. En perfekt lokal för den som är i behov av lagerytor med enkel access.

Information och data

Detta lager att hyra ligger i Borås. Borås har postnummer 51830, och ligger i kommunen Borås som ligger i Västra Götaland. Lokalen är totalt 298 m2.

Vanliga frågor

Statistik över utvecklingen av lediga lagerlokaler att hyra i Borås under den senaste månaden

Nedan ser du utvecklingen av lediga lagerlokaler att hyra i Borås under den senaste månaden. I den första kolumnen ser du datumet. I den andra kolumnen ser du det samlade antalet lagerlokaler att hyra i Borås på datumet. I den tredje kolumnen ser du antal nya lagerlokaler i Borås som lagts ut för uthyrning på datumet. I den fjärde kolumnen ser du antal lagerlokaler i Borås som hyrts ut på datumet. Se även samlad statistik över alla lediga lagerlokaler i Borås över tid, samlad statistik över nya lagerlokaler i Borås över tid, samlad statistik över uthyrda lagerlokaler i Borås över tid.

Datum Alla lagerlokaler att hyra Nya lagerlokaler att hyra Uthyrda lagerlokaler
31. oktober 2025 130 4 3
30. oktober 2025 129 1 1
29. oktober 2025 129 2 1
28. oktober 2025 128 6 7
27. oktober 2025 129 1 1
26. oktober 2025 129 2 2
25. oktober 2025 129 2 3
24. oktober 2025 130 1 0
23. oktober 2025 129 2 5
22. oktober 2025 132 2 2
21. oktober 2025 132 4 0
20. oktober 2025 128 1 2
19. oktober 2025 129 1 2
18. oktober 2025 130 1 0
17. oktober 2025 129 3 3
16. oktober 2025 129 1 2
15. oktober 2025 130 2 2
14. oktober 2025 130 7 5
13. oktober 2025 128 2 1
12. oktober 2025 127 3 3
11. oktober 2025 127 4 7
10. oktober 2025 130 13 10
9. oktober 2025 127 8 0
8. oktober 2025 119 1 4
7. oktober 2025 122 1 1
6. oktober 2025 122 1 1
5. oktober 2025 122 1 1
4. oktober 2025 122 0 1
3. oktober 2025 123 4 2
2. oktober 2025 121 2 3
1. oktober 2025 122 3 0

Statistik över lediga lagerlokaler att hyra i Borås

I nedanstående tabell hittar du data om utbudet av lagerlokaler att hyra i Borås. Se också samlad statistik över alla lediga lagerlokaler i Borås över tid, samlad statistik över nya lagerlokaler i Borås över tid, samlad statistik över uthyrda lagerlokaler i Borås över tid.

Lagerlokaler
Antal lediga lokaler 129
Antal nya lokaler sedan igår 4
Antal uthyrda lokaler sedan igår 3
Lediga m2 totalt 367 587
Genomsnittligt pris per m2 per år utan drift 0
Högsta m2-pris 0
Lägsta m2-pris 0