Foto levereras av Google Street View och kan vara oprecist:

Lediga lokaler att hyra, Eskilstuna, Se gatunamn[xxxxxxxxxx]

Se gatunamn[xxxxxxxxxx], Eskilstuna
  • Lediga lokaler att hyra
  • 500 m2
Lediga lokaler att hyra, Eskilstuna, <span class="blurred street" onclick="ProcessAdRequest(431369)"><span class="hint">Se gatunamn</span>[xxxxxxxxxx]</span>
Se gatunamn[xxxxxxxxxx], Eskilstuna
  • Lediga lokaler att hyra
  • 500 m2

Lediga lokaler att hyra, Eskilstuna, Se gatunamn[xxxxxxxxxx]

Fakta

Rapportera fel
  • 431369
  • Lediga lokaler
  • 500 m2
  • Inte angivet

Typ

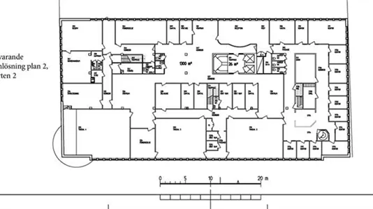
Välkommen till möjligheternas kvarter! En mycket central lokal belägen i gatuplan med bästa skyltläge. Här erbjuder vi effektiva lösningar då lokalerna anpassas efter just er verksamhet. Planlösning och ytskikt skissas fram tillsammans med hyresgästen - butik, utbildning mm, vilka behov har ni? I Vörten 2 finns möjlighet att hyra lokaler från[xxxxx]kvm. Varmgarage finns i fastigheten. Flertalet utomhusparkeringar och parkeringshus är belägna inom gångavstånd i centrum.

Typ


Övrigt

Lokalnr


[xxxxx]

Storlek


[xxxxx]m2 - övrigt

Hiss


Hiss finns i fastigheten

Tillträde


Enligt överenskommelse.

Kommun/Ort/Område


Eskilstuna/Eskilstuna/Centralt

Gatuadress


Rademachergatan 8

Energiprestanda


Energiklass: F. 188 kWh/m² år.

Byggår (Renovår)


1976

Fastighetsbeskrivning


Vörten 2.

Omgivning


Fastigheten Vörten 2 har ett mycket centralt läge intill Fristadstorget med gångavstånd till tåg- och busstation, shopping, restauranger, gym, apotek, frisörer, hotell, Mälardalens Universitet mm. Ett stenkast från Stadsparken och promenadstråk runt Eskilstunaån. Till Munktellbadet och Volvo CE Arena är det en kort promenad på ca 10 minuter.

Kommunikationer


Fastigheten ligger endast ett par hundra meter från tågstationen och Resecentrum med täta avgångar till bl a Stockholm, Västerås och Örebro. Ett par minuters promenad till de flesta lokala busslinjerna.

Information och data

Denna lokal att hyra som kan användas till Lediga lokaler ligger i Eskilstuna, som ligger i Södermanland. Lokalen är totalt 500 m2.

Vanliga frågor

Statistik över utvecklingen av lediga affärslokaler att hyra i Eskilstuna under den senaste månaden

Nedan ser du utvecklingen av lediga affärslokaler att hyra i Eskilstuna under den senaste månaden. I den första kolumnen ser du datumet. I den andra kolumnen ser du det samlade antalet affärslokaler att hyra i Eskilstuna på datumet. I den tredje kolumnen ser du antal nya affärslokaler i Eskilstuna som lagts ut för uthyrning på datumet. I den fjärde kolumnen ser du antal affärslokaler i Eskilstuna som hyrts ut på datumet. Se även samlad statistik över alla lediga affärslokaler i Eskilstuna över tid, samlad statistik över nya affärslokaler i Eskilstuna över tid, samlad statistik över uthyrda affärslokaler i Eskilstuna över tid.

Datum Alla affärslokaler att hyra Nya affärslokaler att hyra Uthyrda affärslokaler
29. oktober 2025 52 0 0
28. oktober 2025 52 0 0
27. oktober 2025 52 0 0
26. oktober 2025 52 0 0
25. oktober 2025 52 0 0
24. oktober 2025 52 0 0
23. oktober 2025 52 0 0
22. oktober 2025 52 9 9
21. oktober 2025 52 9 0
20. oktober 2025 43 0 0
19. oktober 2025 43 0 0
18. oktober 2025 43 0 9
17. oktober 2025 52 0 0
16. oktober 2025 52 0 0
15. oktober 2025 52 0 0
14. oktober 2025 52 0 0
13. oktober 2025 52 0 0
12. oktober 2025 52 0 0
11. oktober 2025 52 0 0
10. oktober 2025 52 0 0
9. oktober 2025 52 0 0
8. oktober 2025 52 2 2
7. oktober 2025 52 2 0
6. oktober 2025 50 0 0
5. oktober 2025 50 0 0
4. oktober 2025 50 0 0
3. oktober 2025 50 1 0
2. oktober 2025 49 0 1
1. oktober 2025 50 0 0
30. september 2025 50 0 0
29. september 2025 50 0 0

Statistik över lediga affärslokaler att hyra i Eskilstuna

I nedanstående tabell hittar du data om utbudet av affärslokaler att hyra i Eskilstuna. Se också samlad statistik över alla lediga affärslokaler i Eskilstuna över tid, samlad statistik över nya affärslokaler i Eskilstuna över tid, samlad statistik över uthyrda affärslokaler i Eskilstuna över tid.

Affärslokaler
Antal lediga lokaler 51
Antal nya lokaler sedan igår 0
Antal uthyrda lokaler sedan igår 0
Lediga m2 totalt 31 841
Genomsnittligt pris per m2 per år utan drift 0
Högsta m2-pris 0
Lägsta m2-pris 0