Butikslokal att hyra, Järfälla,
, Järfälla- Butikslokal att hyra
- 73 m2
Butikslokal att hyra, Järfälla,
Butikslokal att hyra i Järfälla
Perfekt för butik eller showroom eller annan verksamhet som passar i ett köpcentrum.
Lokalen är granne med Systembolaget vilket ger god exponering och ett naturligt kundflöde.
(Vissa bilder är från tidigare hyresgäst)
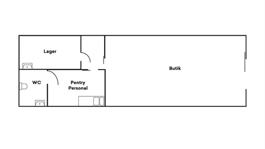
Stor öppen butiks-/utställningsyta, personaldel med pentry, lager och RWC.
Tillgång till kundparkering precis intill centrumet.
Viksjö Centrum är ett levande närcentrum i Järfälla kommun – en av de snabbast växande kommunerna i Stockholms län. Här samsas småbutiker och service med starka varumärken som ICA, Systembolaget, Apotek Hjärtat, Apoteket, Folktandvården, Capio, Vivels Café och Arken Zoo.
En perfekt plats för verksamhet med närhet till både vardagsservice och flöde av besökare.
Ej lämplig för restaurang, café eller frisörverksamhet.
Viksjö Centrum
Yta: ca 73 m²
Hyra: ca 18 250:- /mån ex moms
Fastighetsskatt: 6 077:- / mån ex moms
Tillträde omgående eller enligt överenskommelse.
Hyresdeposition kommer begäras.
Se över var lokalen är belägen innan vi bokar visning.
Kontakta Michel Rydberg via mail för bokning av visning.
Group AB • michel@.se
Information och data
Denna lokal att hyra som kan användas till Butikslokal ligger i Järfälla, som ligger i Stockholms län. Lokalen är totalt 73 m2.
Liknande lokaler
-
70 m2 butikslokal att hyra i Järfälla
- 15 000 kr. per månad
- 2 571,42 kr/m2/år
-
80 m2 butikslokal att hyra i Järfälla, Viksjöplan
- 20 000 kr. per månad
- 3 000 kr/m2/år
-
56 m2 butikslokal att hyra i Järfälla, Viksjöplan
- 14 000 kr. per månad
- 3 000 kr/m2/år
Vanliga frågor
Statistik över utvecklingen av lediga butikslokaler att hyra i Järfälla under den senaste månaden
Nedan ser du utvecklingen av lediga butikslokaler att hyra i Järfälla under den senaste månaden. I den första kolumnen ser du datumet. I den andra kolumnen ser du det samlade antalet butikslokaler att hyra i Järfälla på datumet. I den tredje kolumnen ser du antal nya butikslokaler i Järfälla som lagts ut för uthyrning på datumet. I den fjärde kolumnen ser du antal butikslokaler i Järfälla som hyrts ut på datumet. Se även samlad statistik över alla lediga butikslokaler i Järfälla över tid, samlad statistik över nya butikslokaler i Järfälla över tid, samlad statistik över uthyrda butikslokaler i Järfälla över tid.
| Datum | Alla butikslokaler att hyra | Nya butikslokaler att hyra | Uthyrda butikslokaler |
|---|---|---|---|
| 28. oktober 2025 | 52 | 2 | 0 |
| 27. oktober 2025 | 50 | 0 | 3 |
| 26. oktober 2025 | 53 | 0 | 0 |
| 25. oktober 2025 | 53 | 0 | 0 |
| 24. oktober 2025 | 53 | 1 | 1 |
| 23. oktober 2025 | 53 | 1 | 1 |
| 22. oktober 2025 | 53 | 0 | 0 |
| 21. oktober 2025 | 53 | 4 | 0 |
| 20. oktober 2025 | 49 | 0 | 4 |
| 19. oktober 2025 | 53 | 0 | 0 |
| 18. oktober 2025 | 53 | 0 | 0 |
| 17. oktober 2025 | 53 | 2 | 0 |
| 16. oktober 2025 | 51 | 0 | 0 |
| 15. oktober 2025 | 51 | 2 | 3 |
| 14. oktober 2025 | 52 | 2 | 0 |
| 13. oktober 2025 | 50 | 0 | 1 |
| 12. oktober 2025 | 51 | 0 | 0 |
| 11. oktober 2025 | 51 | 2 | 2 |
| 10. oktober 2025 | 51 | 7 | 5 |
| 9. oktober 2025 | 49 | 6 | 0 |
| 8. oktober 2025 | 43 | 0 | 0 |
| 7. oktober 2025 | 43 | 0 | 0 |
| 6. oktober 2025 | 43 | 0 | 0 |
| 5. oktober 2025 | 43 | 0 | 0 |
| 4. oktober 2025 | 43 | 0 | 0 |
| 3. oktober 2025 | 43 | 1 | 1 |
| 2. oktober 2025 | 43 | 0 | 0 |
| 1. oktober 2025 | 43 | 0 | 0 |
| 30. september 2025 | 43 | 0 | 2 |
| 29. september 2025 | 45 | 0 | 0 |
| 28. september 2025 | 45 | 0 | 0 |
Statistik över lediga butikslokaler att hyra i Järfälla
I nedanstående tabell hittar du data om utbudet av butikslokaler att hyra i Järfälla. Se också samlad statistik över alla lediga butikslokaler i Järfälla över tid, samlad statistik över nya butikslokaler i Järfälla över tid, samlad statistik över uthyrda butikslokaler i Järfälla över tid.
| Butikslokaler | |
|---|---|
| Antal lediga lokaler | 53 |
| Antal nya lokaler sedan igår | 2 |
| Antal uthyrda lokaler sedan igår | 0 |
| Lediga m2 totalt | 17 287 |
| Genomsnittligt pris per m2 per år utan drift | 2 742 |
| Högsta m2-pris | 3 000 |
| Lägsta m2-pris | 2 400 |