Kontorsfastighet till salu, Stockholm Innerstad,
, Stockholm Innerstad- Kontorsfastighet till salu
- Ca. 70 m2
- Ca. 10 000 kr.
- Kontorsfastighet till salu
- Ca. 70 m2
- Ca. 10 000 kr.
⚡ Se all information om fastigheten och få direkt tillgång till säljarens kontaktuppgifter.
Kontorsfastighet till salu, Stockholm Innerstad,
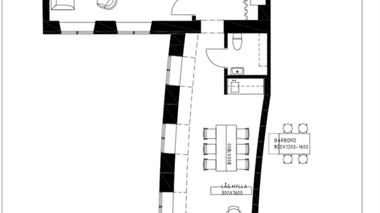
Kontorslokal med ljudstudio i Gamla Stan — 72 kvm, vindsvåning
Lokalen lämpar sig för kontorsverksamhet, kreativt arbete eller ljud- och medieproduktion.
Lokalen:
72 kvm, vindsvåning med naturligt ljus genom flera fönster
Öppen yta samt separat helljudsisolerat rum — perfekt för inspelning, ljudarbete eller ostörda möten. Pentrydel och förvaring
Inventarier:
Möbler och inredning ingår ej men kan diskuteras separat. Det ljudisolerade rummet är en fast del av lokalen men kan tas bort om det inte önskas.
Läge:
Gamla Stan, Stockholm. 5 minuters promenad till tunnelbana.
Tre trappor upp, ingen hiss.
Hyra:
23 000 kr/mån exkl. moms, faktureras kvartalsvis. Överlåtelsepris kan diskuteras.
Kontakta oss för adress och visning.
Information och data
Denna kontorsfastighet till salu ligger i Stockholm Innerstad, som ligger i Stockholm. Fastigheten är totalt 72 m2. Försäljningspriset för fastigheten är Ca. 10 000 kr..
Liknande lokaler
-
Ca. 100 m2 kontor att hyra på Södermalm
Fri kontakt- Ca. 34 500 kr. per månad
- Ca. 4 000 kr/m2/år
-
10 - 23 m2 kontor att hyra i Stockholm Innerstad
- Ca. 4 000 kr/m2/år
-
Ca. 20 m2 kontor att hyra i Stockholm Innerstad
- Ca. 17 500 kr. per månad
- Ca. 10 500 kr/m2/år
-
Ca. 40 m2 kontor att hyra i Stockholm Innerstad
- Ca. 12 000 kr. per månad
- Ca. 3 500 kr/m2/år
Vanliga frågor
Statistik över utvecklingen av lediga kontorsfastigheter till salu i Stockholm Innerstad under den senaste månaden
Nedan ser du utvecklingen av lediga kontorsfastigheter till salu i Stockholm Innerstad under den senaste månaden. I den första kolumnen ser du datumet. I den andra kolumnen ser du det samlade antalet kontorsfastigheter till salu i Stockholm Innerstad på datumet. I den tredje kolumnen ser du antal nya kontorsfastigheter i Stockholm Innerstad som lagts ut till försäljning på datumet. I den fjärde kolumnen ser du antal kontorsfastigheter i Stockholm Innerstad som sålts på datumet. Se även samlad statistik över alla lediga kontorsfastigheter till salu i Stockholm Innerstad över tid, samlad statistik över nya kontorslokaler till salu i Stockholm Innerstad över tid, samlad statistik över sålda kontorsfastigheter i Stockholm Innerstad över tid.
| Datum | Alla kontorsfastigheter till salu | Nya kontorsfastigheter till salu | Sålda kontorsfastigheter |
|---|---|---|---|
| 22. mars 2026 | 35 | 0 | 0 |
| 21. mars 2026 | 35 | 0 | 0 |
| 20. mars 2026 | 35 | 0 | 0 |
| 19. mars 2026 | 35 | 0 | 0 |
| 18. mars 2026 | 35 | 0 | 0 |
| 17. mars 2026 | 35 | 0 | 0 |
| 16. mars 2026 | 35 | 0 | 0 |
| 15. mars 2026 | 35 | 0 | 0 |
| 14. mars 2026 | 35 | 0 | 0 |
| 13. mars 2026 | 35 | 0 | 0 |
| 12. mars 2026 | 35 | 0 | 0 |
| 11. mars 2026 | 35 | 0 | 1 |
| 10. mars 2026 | 36 | 0 | 0 |
| 9. mars 2026 | 36 | 2 | 0 |
| 8. mars 2026 | 34 | 0 | 2 |
| 7. mars 2026 | 36 | 0 | 0 |
| 6. mars 2026 | 36 | 0 | 0 |
| 5. mars 2026 | 36 | 0 | 0 |
| 4. mars 2026 | 36 | 0 | 0 |
| 3. mars 2026 | 36 | 0 | 0 |
| 2. mars 2026 | 36 | 0 | 0 |
| 1. mars 2026 | 36 | 0 | 0 |
| 28. februari 2026 | 36 | 0 | 0 |
| 27. februari 2026 | 36 | 0 | 0 |
| 26. februari 2026 | 36 | 0 | 0 |
| 25. februari 2026 | 36 | 0 | 0 |
| 24. februari 2026 | 36 | 1 | 1 |
| 23. februari 2026 | 36 | 1 | 0 |
| 22. februari 2026 | 35 | 0 | 0 |
| 21. februari 2026 | 35 | 0 | 0 |
| 20. februari 2026 | 35 | 0 | 0 |
Statistik över lediga kontorsfastigheter till salu i Stockholm Innerstad
I nedanstående tabell hittar du data om utbudet av kontorsfastigheter till salu i Stockholm Innerstad. Se också samlad statistik över alla lediga kontorsfastigheter till salu i Stockholm Innerstad över tid, samlad statistik över nya kontorslokaler till salu i Stockholm Innerstad över tid, samlad statistik över sålda kontorsfastigheter i Stockholm Innerstad över tid.
| Kontorslokaler | |
|---|---|
| Antal lediga lokaler | 35 |
| Antal nya lokaler sedan igår | 0 |
| Antal sålda lokaler sedan igår | 0 |
| Lediga m2 totalt | 24 963 |
| Genomsnittligt pris per m2 per år utan drift | 1 |