Foto levereras av Google Street View och kan vara oprecist:

Kontor att hyra, Gotland, Visby, Se gatunamn[xxxxxxxxxx]

Se gatunamn[xxxxxxxxxx], Gotland
  • Kontor att hyra
  • 631 m2
Kontor att hyra, Gotland, Visby, <span class="blurred street" onclick="ProcessAdRequest(247698)"><span class="hint">Se gatunamn</span>[xxxxxxxxxx]</span>
Se gatunamn[xxxxxxxxxx], Gotland
  • Kontor att hyra
  • 631 m2

Kontor att hyra, Gotland, Visby, Se gatunamn[xxxxxxxxxx]

Fakta

Rapportera fel
  • 247698
  • Kontor
  • 631 m2
  • Inte angivet

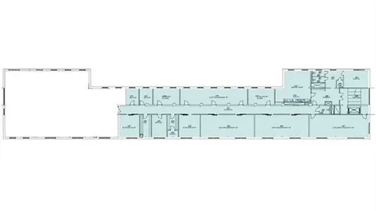
Välplanerad kontorslokal i attraktivt företagsområde

Välkommen att hyra denna ljusa och rymliga kontorslokal om 631 kvm.

Lokalen ligger i en fin tegelfastighet i funkisstil belägen i trevliga Visborgsområdet.

Lokalen består av flera mindre kontorsrum, öppet kontorslandskap och konferensrum. Utöver kontorsytorna erbjuder lokalen kapprum, pentry, matsal och tre toaletter. Ytskikten i lokalen är endast några år gamla och håller en genomgående hög standard.

Övriga hyresgäster i byggnaden är Region Gotland och Securitas.

Kontakta oss gärna för mer infortmation och visning.

Typ


Kontor

Lokalnr


[xxxxx]

Storlek


631 m2 - kontor

Hiss


Hiss finns i fastigheten

Tillträde


Enligt överenskommelse.

Kommun/Ort/Område


Gotland/Visby/Visby

Gatuadress


Visborgsallén 39-41

Byggår (Renovår)


1940

Omgivning


Fastigheten är belägen i Visborgsområdet, ett naturnära område som tidigare huserades av militären men idag utgörs av framför allt kontor för myndigheter och företag.

Kommunikationer


Till centrala Visby är det ca tre och en halv kilometer.

Service


I området finns lunchrestauranger, matbutik och gym.

Parkering


Avgiftsbelagd parkering finns i området.

Information och data

Detta kontor att hyra ligger i Gotland, som ligger på Gotland (region). Lokalen är totalt 631 m2.

Vanliga frågor

Statistik över utvecklingen av lediga kontorslokaler att hyra i Gotland under den senaste månaden

Nedan ser du utvecklingen av lediga kontorslokaler att hyra i Gotland under den senaste månaden. I den första kolumnen ser du datumet. I den andra kolumnen ser du det samlade antalet kontorslokaler att hyra i Gotland på datumet. I den tredje kolumnen ser du antal nya kontorslokaler i Gotland som lagts ut för uthyrning på datumet. I den fjärde kolumnen ser du antal kontorslokaler i Gotland som hyrts ut på datumet. Se även samlad statistik över alla lediga kontorslokaler i Gotland över tid, samlad statistik över nya kontorslokaler i Gotland över tid, samlad statistik över uthyrda kontorslokaler i Gotland över tid.

Datum Alla kontorslokaler att hyra Nya kontorslokaler att hyra Uthyrda kontorslokaler
28. oktober 2025 9 0 0
27. oktober 2025 9 0 0
26. oktober 2025 9 0 0
25. oktober 2025 9 0 0
24. oktober 2025 9 0 0
23. oktober 2025 9 0 0
22. oktober 2025 9 0 0
21. oktober 2025 9 0 0
20. oktober 2025 9 0 0
19. oktober 2025 9 0 0
18. oktober 2025 9 0 0
17. oktober 2025 9 0 0
16. oktober 2025 9 0 0
15. oktober 2025 9 0 0
14. oktober 2025 9 0 0
13. oktober 2025 9 0 0
12. oktober 2025 9 0 0
11. oktober 2025 9 0 0
10. oktober 2025 9 1 1
9. oktober 2025 9 1 0
8. oktober 2025 8 0 0
7. oktober 2025 8 0 0
6. oktober 2025 8 0 0
5. oktober 2025 8 0 0
4. oktober 2025 8 0 0
3. oktober 2025 8 0 0
2. oktober 2025 8 0 0
1. oktober 2025 8 0 0
30. september 2025 8 0 1
29. september 2025 9 0 0
28. september 2025 9 0 0

Statistik över lediga kontorslokaler att hyra i Gotland

I nedanstående tabell hittar du data om utbudet av kontorslokaler att hyra i Gotland. Se också samlad statistik över alla lediga kontorslokaler i Gotland över tid, samlad statistik över nya kontorslokaler i Gotland över tid, samlad statistik över uthyrda kontorslokaler i Gotland över tid.

Kontorslokaler
Antal lediga lokaler 9
Antal nya lokaler sedan igår 0
Antal uthyrda lokaler sedan igår 0
Lediga m2 totalt 2 285
Genomsnittligt pris per m2 per år utan drift 0
Högsta m2-pris 0
Lägsta m2-pris 0