Foto levereras av Google Street View och kan vara oprecist:

Kontorshotell att hyra, Mölndal, Lindome, Se gatunamn[xxxxxxxxxx]

Se gatunamn[xxxxxxxxxx], Mölndal
  • Kontorshotell att hyra
Kontorshotell att hyra, Mölndal, Lindome, <span class="blurred street" onclick="ProcessAdRequest(471660)"><span class="hint">Se gatunamn</span>[xxxxxxxxxx]</span>
Se gatunamn[xxxxxxxxxx], Mölndal
  • Kontorshotell att hyra

Kontorshotell att hyra, Mölndal, Lindome, Se gatunamn[xxxxxxxxxx]

Fakta

Rapportera fel
  • 471660
  • Kontorshotell
  • Inte angivet

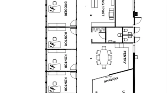
Nu ges tillfälle att hyra ett av våra större rum om ca 25 kvm i vårt mysiga kontorshotell i Lindome.

Välkommen till Kontorshotellet i Lindome Park!

Nu har vi två kommande nyrenoverade rum lediga på vår fräscha kontorshotell i Lindome, med endast femton minuter med bil från centrala Göteborg. Rummen på ca 20 kvm vardera, ligger avskilt en halvtrappa upp på plan 2.

På plan 1 har du tillgång till alla bekvämligheter kontorshotellet har att erbjuda. Gemensamma ytor för interaktion och konferens, samt kök, dusch och WC.

Välkommen för personlig visning!

Information och data

Detta kontorshotell ligger i Mölndal. Mölndal ligger i kommunen Mölndal som ligger i Västra Götaland.

Vanliga frågor

Statistik över utvecklingen av lediga kontorshotell att hyra i Mölndal under den senaste månaden

Nedan ser du utvecklingen av lediga kontorshotell att hyra i Mölndal under den senaste månaden. I den första kolumnen ser du datumet. I den andra kolumnen ser du det samlade antalet kontorshotell att hyra i Mölndal på datumet. I den tredje kolumnen ser du antal nya kontorshotell i Mölndal som lagts ut för uthyrning på datumet. I den fjärde kolumnen ser du antal kontorshotell i Mölndal som hyrts ut på datumet. Se även samlad statistik över alla lediga kontorshotell i Mölndal över tid, samlad statistik över nya kontorshotell i Mölndal över tid, samlad statistik över uthyrda kontorshotell i Mölndal över tid.

Datum Alla kontorshotell att hyra Nya kontorshotell att hyra Uthyrda kontorshotell
29. oktober 2025 20 0 0
28. oktober 2025 20 1 0
27. oktober 2025 19 0 1
26. oktober 2025 20 0 0
25. oktober 2025 20 0 0
24. oktober 2025 20 0 0
23. oktober 2025 20 0 0
22. oktober 2025 20 0 1
21. oktober 2025 21 0 0
20. oktober 2025 21 0 0
19. oktober 2025 21 0 0
18. oktober 2025 21 0 0
17. oktober 2025 21 0 0
16. oktober 2025 21 0 0
15. oktober 2025 21 0 0
14. oktober 2025 21 0 0
13. oktober 2025 21 0 0
12. oktober 2025 21 0 0
11. oktober 2025 21 0 0
10. oktober 2025 21 1 1
9. oktober 2025 21 1 0
8. oktober 2025 20 0 0
7. oktober 2025 20 0 0
6. oktober 2025 20 0 0
5. oktober 2025 20 0 0
4. oktober 2025 20 0 0
3. oktober 2025 20 0 0
2. oktober 2025 20 0 0
1. oktober 2025 20 0 0
30. september 2025 20 0 1
29. september 2025 21 0 0

Statistik över lediga kontorshotell att hyra i Mölndal

I nedanstående tabell hittar du data om utbudet av kontorshotell att hyra i Mölndal. Se också samlad statistik över alla lediga kontorshotell i Mölndal över tid, samlad statistik över nya kontorshotell i Mölndal över tid, samlad statistik över uthyrda kontorshotell i Mölndal över tid.

Kontorshotell
Antal lediga lokaler 20
Antal nya lokaler sedan igår 0
Antal uthyrda lokaler sedan igår 0
Lediga m2 totalt 9 147
Genomsnittligt pris per m2 per år utan drift 0
Högsta m2-pris 0
Lägsta m2-pris 0