Foto levereras av Google Street View och kan vara oprecist:
Fri kontakt

Kontor att hyra, Vallentuna, Tuna Torg 2-4

Tuna Torg 2-4, Vallentuna
  • Kontor att hyra
  • 480 m2
Kontor att hyra, Vallentuna, Tuna Torg 2-4
Tuna Torg 2-4, Vallentuna
  • Kontor att hyra
  • 480 m2
Få mer info om lokalen

⚡ Se all information om lokalen och få direkt tillgång till hyresvärdens kontaktuppgifter.

Kontor att hyra, Vallentuna, Tuna Torg 2-4

Fastpartner
Christopher Johansson
tlf: 08-4023460
Se e-postadressxxxxxxxxxxxxxxx

PRO-HYRESVÄRD

Läs mer

Läs om hyresvärd

Fakta

Rapportera fel
  • 567282
  • Kontor
  • 480 m2
  • Inte angivet

Tuna Torg 2-4

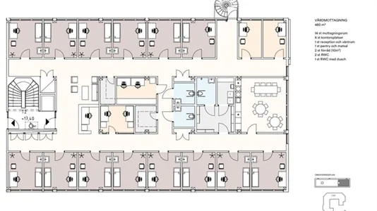
Moderna kontor i hjärtat av Vallentuna CentrumNu finns möjligheten att etablera er verksamhet i attraktiva lokaler mitt i Vallentuna Centrum. Här sitter ni med närhet till service, handel, restauranger och all tänkbar vardagsservice ett perfekt läge för både medarbetare och besökare.Kommunikationerna är mycket goda med Roslagsbanan som tar er till Stockholm Östra på ca 30 minuter samt flera busslinjer i direkt anslutning. För den som pendlar med bil finns goda parkeringsmöjligheter i området.Fastigheten genomgår just nu en omfattande upprustning, vilket ger er en unik möjlighet att flytta in i helt nyrenoverade, moderna och fräscha lokaler. Planlösningen anpassas i dialog med er som hyresgäst, vilket innebär att ni har goda möjligheter att påverka utformning och layout efter verksamhetens behov.Lokalerna lämpar sig mycket väl för såväl kontorsverksamhet som vård- och behandlingsverksamhet, med möjlighet att skapa en funktionell och välkomnande miljö för både personal och patienter.Här skapar vi effektiva och trivsamma arbetsplatser med fokus på kvalitet, flexibilitet och långsiktighet.Välkommen att kontakta oss för mer information eller för att boka en visning!Öppen eller rumsindelatCa 1 minuts promenad från Vallentuna station och Roslagsbanan som tar dig till Östermalm på 30 minuter. Buss 610 mellan Danderyds sjukhus och Vallentuna stannar utanför.Hitta hit med SLFastigheten ligger mitt i Valletuna centrum. Här finns förutom ICA, Coop och Systembolaget även restaunger som Bores, Misoras Sushi och Brödernas.Enligt överenskommelseFastpartner är ett börsnoterat fastighetsbolag som äger och förvaltar fastigheter långsiktigt med egen personal. Vår affärsidé är att skapa goda och långvariga relationer med våra hyresgäster genom att vara lyhörda för våra hyresgästers önskemål samt engagerade i förvaltningen och utvecklingen av våra fastigheter. Vårt fastighetsbestånd är koncentrerat till Stockholm, men vi har också lokaler på ett flertal expansiva orter i Sverige, bla Göteborg, Malmö, Norrköping, Uppsala och Gävle. Vi tycker det är kul att arbeta med den tekniska utvecklingen av våra fastigheter. Vi ser att det både finns en vinning för miljön och plånboken i att vara en engagerad hyresvärd. Vår organisation genomsyras av en entreprenörsanda och har korta beslutsvägar vilket uppskattas av våra hyresgäster. Välkommen till Fastpartner!Fastigheten är ett 3 vånings hus med butikslokaler i markplan. Det finns hiss och trapphus vid varje port.Fastigheten ligger mitt i Vallentuna centrum. Detta är Vallentuna kommuns centrum hjärta. Här finner man flera olika matbutiker och restauranger. Det finns flera oilka affärer och även bowlinghall.

Information och data

Detta kontor att hyra ligger i Vallentuna, som ligger i Stockholms län. Lokalen är totalt 480 m2.

Vanliga frågor

Statistik över utvecklingen av lediga kontorslokaler att hyra i Vallentuna under den senaste månaden

Nedan ser du utvecklingen av lediga kontorslokaler att hyra i Vallentuna under den senaste månaden. I den första kolumnen ser du datumet. I den andra kolumnen ser du det samlade antalet kontorslokaler att hyra i Vallentuna på datumet. I den tredje kolumnen ser du antal nya kontorslokaler i Vallentuna som lagts ut för uthyrning på datumet. I den fjärde kolumnen ser du antal kontorslokaler i Vallentuna som hyrts ut på datumet. Se även samlad statistik över alla lediga kontorslokaler i Vallentuna över tid, samlad statistik över nya kontorslokaler i Vallentuna över tid, samlad statistik över uthyrda kontorslokaler i Vallentuna över tid.

Datum Alla kontorslokaler att hyra Nya kontorslokaler att hyra Uthyrda kontorslokaler
3. maj 2026 25 0 0
2. maj 2026 25 0 0
1. maj 2026 25 0 0
30. april 2026 25 1 1
29. april 2026 25 0 0
28. april 2026 25 0 0
27. april 2026 25 0 0
26. april 2026 25 0 0
25. april 2026 25 0 0
24. april 2026 25 1 1
23. april 2026 25 3 0
22. april 2026 22 0 0
21. april 2026 22 0 0
20. april 2026 22 0 0
19. april 2026 22 0 0
18. april 2026 22 0 0
17. april 2026 22 5 0
16. april 2026 17 0 0
15. april 2026 17 0 0
14. april 2026 17 2 0
13. april 2026 15 0 0
12. april 2026 15 0 0
11. april 2026 15 0 0
10. april 2026 15 0 0
9. april 2026 15 0 0
8. april 2026 15 0 0
7. april 2026 15 0 0
6. april 2026 15 0 0
5. april 2026 15 0 0
4. april 2026 15 0 0
3. april 2026 15 0 0

Statistik över lediga kontorslokaler att hyra i Vallentuna

I nedanstående tabell hittar du data om utbudet av kontorslokaler att hyra i Vallentuna. Se också samlad statistik över alla lediga kontorslokaler i Vallentuna över tid, samlad statistik över nya kontorslokaler i Vallentuna över tid, samlad statistik över uthyrda kontorslokaler i Vallentuna över tid.

Kontorslokaler
Antal lediga lokaler 25
Antal nya lokaler sedan igår 0
Antal uthyrda lokaler sedan igår 0
Lediga m2 totalt 4 804
Genomsnittligt pris per m2 per år utan drift 0
Högsta m2-pris 0
Lägsta m2-pris 0