Foto levereras av Google Street View och kan vara oprecist:
Fri kontakt

Kontor att hyra, Västerort, Norgegatan 1

Norgegatan 1, Stockholm Västerort
  • Kontor att hyra
  • 244 m2
  • 34 567 kr. per månad
Kontor att hyra, Västerort, Norgegatan 1
Norgegatan 1, Stockholm Västerort
  • Kontor att hyra
  • 244 m2
  • 34 567 kr. per månad
Få mer info om lokalen

⚡ Se all information om lokalen och få direkt tillgång till hyresvärdens kontaktuppgifter.

Kontor att hyra, Västerort, Norgegatan 1

ADR Fastighetsförvaltning AB
Glenn Rickardsson
tlf: +46 (0) 76 496 42 44
Se e-postadressxxxxxxxxxxxxxxx

PRO-HYRESVÄRD

Läs mer

Läs om hyresvärd

Fakta

Rapportera fel
  • 584602
  • Kontor
  • Coworking
  • Klinik
  • 244 m2
  • 414 800 kr.
  • 34 567 kr.
  • 1 700 kr.

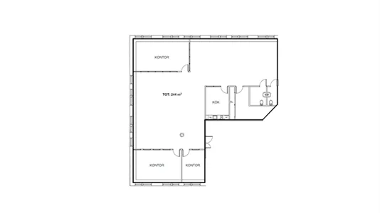
Lokal uthyres på Norgegatan 1 i Kista

Nu finns möjlighet att hyra en flexibel lokal i ett bra läge i Kista.

Lokalen passar utmärkt för exempelvis för hälsovård, yogastudio eller annan liknande verksamhet.

Lokalen erbjuder:
- Kök
- Två toaletter
- Flera kontorsytor
- Möjlighet till hyresgästanpassning

Fastigheten har goda parkeringsmöjligheter och ligger nära kollektivtrafik med gångavstånd till Kista centrum och tunnelbanestation.
I närområdet finns förskolor, fotbollsplan och serviceutbud, inklusive Kista Galleria.

Kontakta oss för mer information eller visning.

Service: Konferensrum, Kök/lunchrum, Parkeringsplatser

Vanliga frågor

Statistik över utvecklingen av lediga kontorslokaler att hyra i Västerort under den senaste månaden

Nedan ser du utvecklingen av lediga kontorslokaler att hyra i Västerort under den senaste månaden. I den första kolumnen ser du datumet. I den andra kolumnen ser du det samlade antalet kontorslokaler att hyra i Västerort på datumet. I den tredje kolumnen ser du antal nya kontorslokaler i Västerort som lagts ut för uthyrning på datumet. I den fjärde kolumnen ser du antal kontorslokaler i Västerort som hyrts ut på datumet. Se även samlad statistik över alla lediga kontorslokaler i Västerort över tid, samlad statistik över nya kontorslokaler i Västerort över tid, samlad statistik över uthyrda kontorslokaler i Västerort över tid.

Datum Alla kontorslokaler att hyra Nya kontorslokaler att hyra Uthyrda kontorslokaler
22. april 2026 759 4 10
21. april 2026 765 3 2
20. april 2026 764 7 0
19. april 2026 757 1 0
18. april 2026 756 2 0
17. april 2026 754 112 22
16. april 2026 664 2 1
15. april 2026 663 5 4
14. april 2026 662 6 0
13. april 2026 656 2 0
12. april 2026 654 0 0
11. april 2026 654 2 2
10. april 2026 654 2 0
9. april 2026 652 7 7
8. april 2026 652 5 0
7. april 2026 647 1 1
6. april 2026 647 1 0
5. april 2026 646 0 0
4. april 2026 646 0 0
3. april 2026 646 6 6
2. april 2026 646 7 0
1. april 2026 639 2 2
31. mars 2026 639 7 8
30. mars 2026 640 5 0
29. mars 2026 635 0 0
28. mars 2026 635 4 33
27. mars 2026 664 20 18
26. mars 2026 662 36 0
25. mars 2026 626 3 16
24. mars 2026 639 8 5
23. mars 2026 636 3 0

Statistik över lediga kontorslokaler att hyra i Västerort

I nedanstående tabell hittar du data om utbudet av kontorslokaler att hyra i Västerort. Se också samlad statistik över alla lediga kontorslokaler i Västerort över tid, samlad statistik över nya kontorslokaler i Västerort över tid, samlad statistik över uthyrda kontorslokaler i Västerort över tid.

Kontorslokaler
Antal lediga lokaler 815
Antal nya lokaler sedan igår 4
Antal uthyrda lokaler sedan igår 10
Lediga m2 totalt 601 036
Genomsnittligt pris per m2 per år utan drift 2 498
Högsta m2-pris 6 680,1
Lägsta m2-pris 36